History
590 Q Street was originally the home of the Sacramento Bag Manufacturing Company in Sacramento, CA, which manufactured items like agricultural packaging, burlap, bulk bags, mesh, cotton, PE, textile, and sandbags.
Construction Documents
Demolition | Floor Plan | Interior Elevations
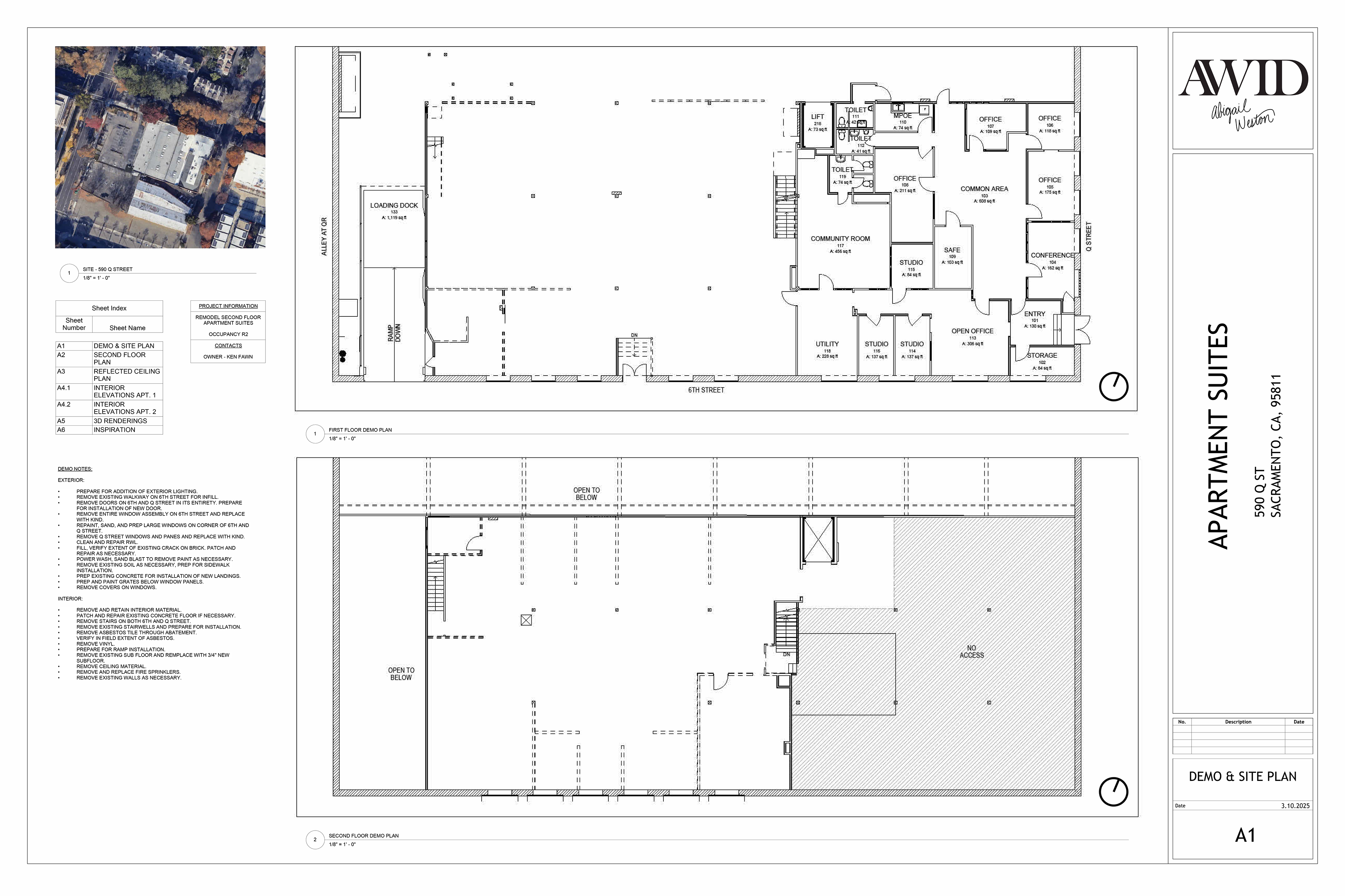
Demolition
Demolition
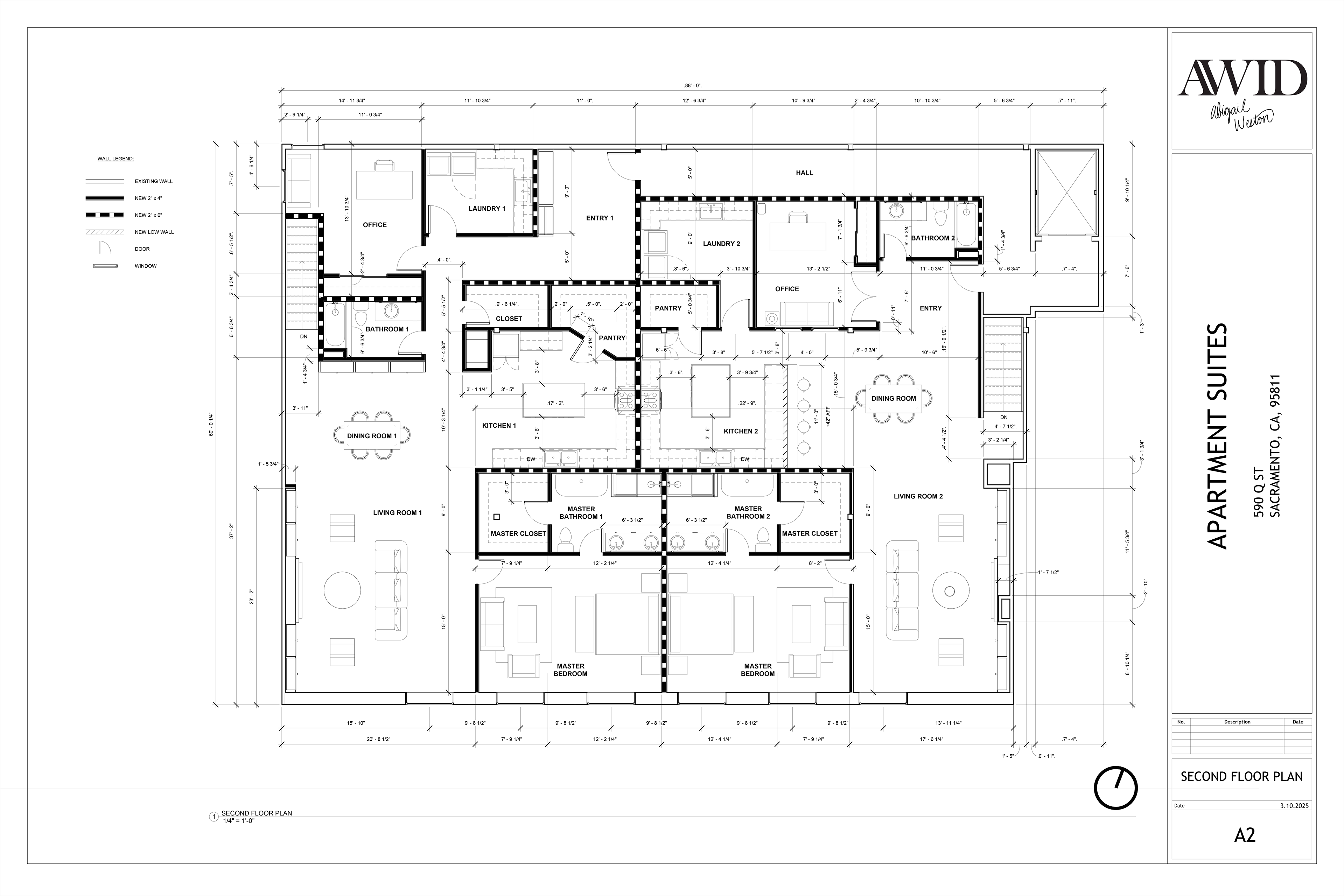
Floor Plan
Floor Plan
Apartment One Interior Elevations
Apartment One Interior Elevations
Apartment Two Interior Elevations
Apartment Two Interior Elevations
Apartment One 3D Renderings
Apartment Two 3D Renderings
Softwares Used
Revit | AutoCAD | Photoshop

You may also like

Back to Top