Artifact
the interview  |  the object |  the model   
An approach to the design process through the lens of a personal narrative of an immigrant.

The Object

The Interview
After decades of living in the United States, my interviewee recalls easily the feeling of being lost in the bustling cities of her new country- a stark contrast to the small towns of her home country in Germany. She no longer was able to enjoy walkable city centers and was met instead with busy metropolises filled with large cars and buildings that were foreign to her. She tried to keep up with the new fast paced language but faced struggles with language barriers until she taught herself fluency.
From home, she brought a flour mill she uses when baking fresh bread. With it, she is able to feed her family using fresh ingredients and it serves as a reminder to the customs she enjoyed in Germany.
As time has passed, she has become accustomed to the American lifestyle and attributes it as the homeland of both her children. She has found comfort within the United States and now considers it her home.
The Model
A plaster model representing the story of my interviewee, showcasing different pathways that create a sense of feeling lost. I intentionally added numerous openings and angled planes to affect the light that entered the space as well as tapered openings to represent the feeling of being small in a big space.
Center
site |  parti  |  process work  | floorplans | sections | renderings
The Immigration Center of California is a hub for educational opportunities catering to all learning levels, fostering advanced skills that promote personal development and success.
K Street facade
K Street facade
10th Street facade
10th Street facade
Site Plan + Roof Plan
Site Plan + Roof Plan
The Site | 1022 10th Street,  Sacramento, California
On the corner of 10th & K in downtown Sacramento, RIDGE sits just blocks away from the State Capitol Building and is among dozens of markers of city life like eateries, hotels, parks, and museums. The building receives substantial sunlight from all exposed facades, with shading from neighboring buildings and the trees lining K Street. The intersection allows for the flow of Southwestern winds that help cool the building from the extreme heat that the California Valley faces in the warmer months.
The Parti
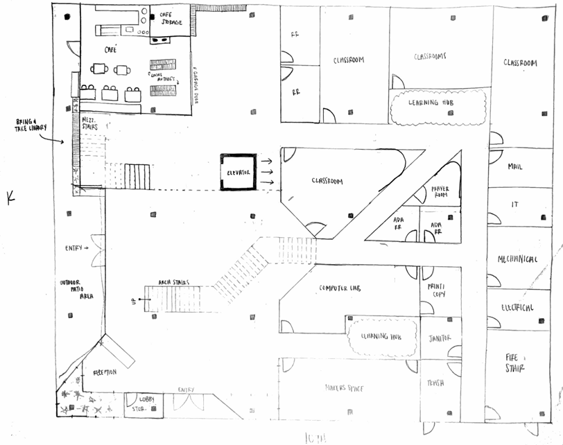
RIDGE at its core is dedicated to providing educational opportunities for immigrants old and new. Wayfinding techniques are used throughout the building to guide habitants to these learning centers comprised of learning hubs, libraries, classrooms, a computer lab, and a maker's space.
Process Work
Level One Floor Plan Ideation
Level One Floor Plan Ideation
K Street Facade Ideation
K Street Facade Ideation
10th Street Facade Ideation
10th Street Facade Ideation
Level One Floor Plan Ideation
Level One Floor Plan Ideation
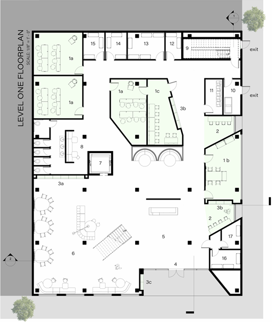
The Floorplans
The Sections
The Renderings
First look in- The Receptionist's Desk
First look in- The Receptionist's Desk
Learning Hub
Learning Hub
Lobby + Mezzanine Event Space
Lobby + Mezzanine Event Space
Seating + Workspaces
Seating + Workspaces
Classroom + Specialty Library
Classroom + Specialty Library
Second Floor- Learning Hub & Library
Second Floor- Learning Hub & Library
Exterior View
Exterior View
Softwares Used
Revit | SketchUp | Photoshop | Illustrator

You may also like

Back to Top